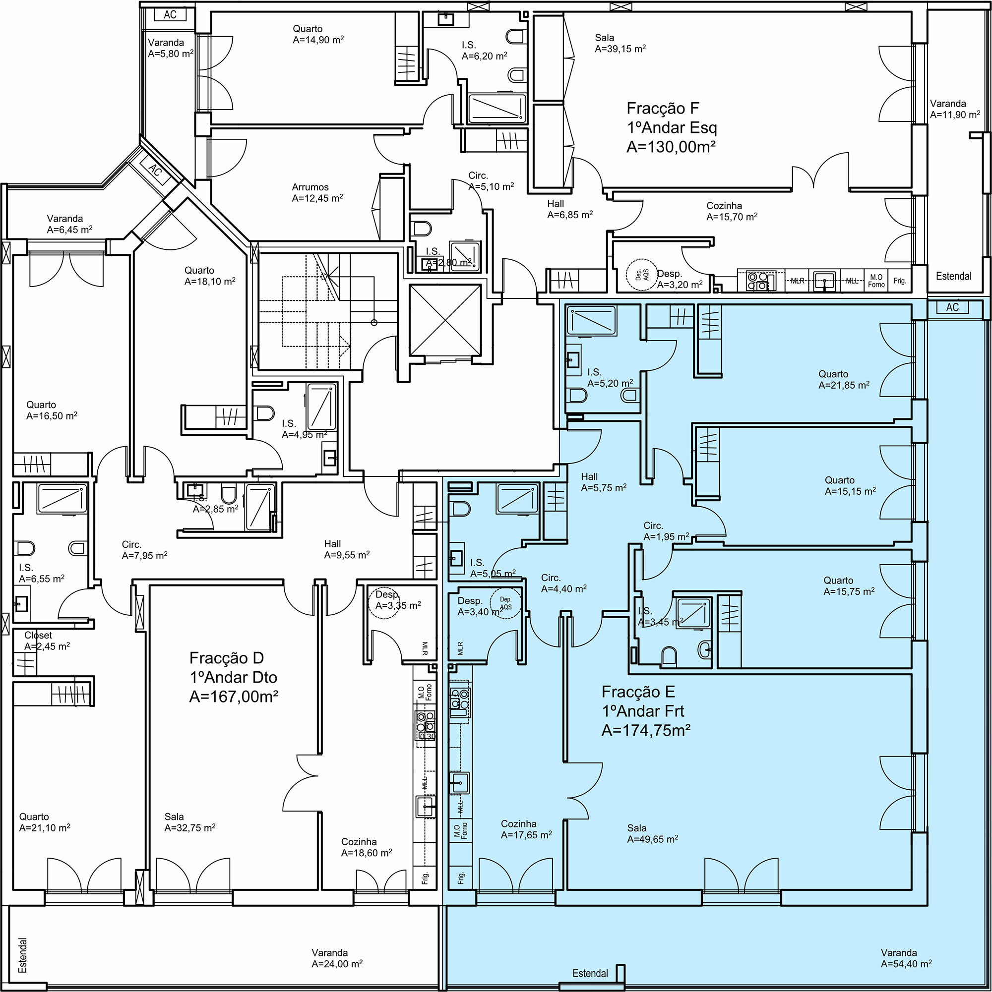
Casa do Montijo

Lote 2 – 1º Frente


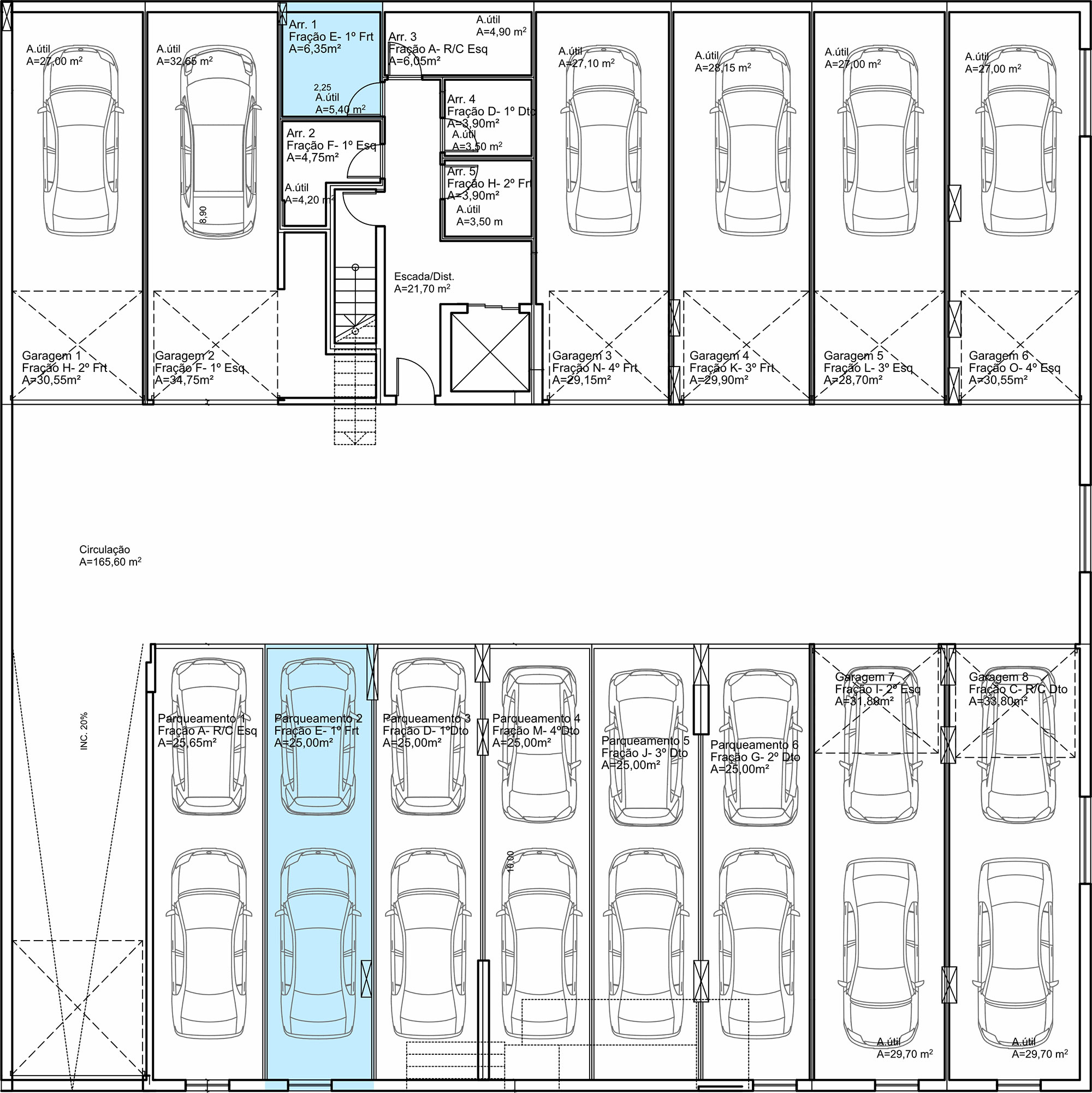
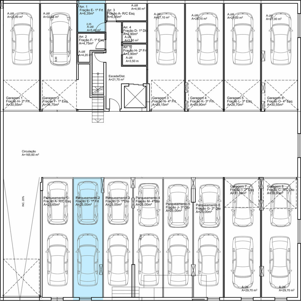
T3 com parqueamento e arrecadação
260,50 m² de área bruta de construção

174,75 m² de área bruta privativa
85,75 m² de área bruta dependente

Mapa de Acabamentos

 

Fundações do Edifício

Construtivamente o edifício baseia-se no sistema estrutural de betão armado (pilar-laje) complementado por panos de alvenaria de tijolo.

 

Caixilharia

  • Caixilharia em PVC da marca “Cortizo” com corte térmico e oscilobatente.
  • Acabamento branco interior e “Gris Antracite” exterior, com respectivos acessórios a branco.
  • Vidros duplos térmicos “Planitherm” com caixa de ar de 18mm.
  • Caixa de estore marca “Polibox” em Poliestireno expandido (EPS) de alta densidade, reforçados com uma malha de aço que lhe garantem uma elevada resistência mecânica.

 

Portas

  • Porta exterior blindada da marca “Alias”, térmica com insonorização e corta vento.
  • Portas interiores lacado branco semi brilho em madeira maciça e Favo alveolar com as faces lacado branco em MDF 5mm.
  • Aros e guarnições em contraplacado marítimo. Ferragem FR98 e puxador em  inox.
  • Fechadura magnética.

 

Paredes e isolamento

  • As paredes exteriores são duplas em alvenaria de tijolo com isolamento térmico e acústico.
  • As paredes interiores são em alvenaria e tijolo.

 

Pavimentos

  • Pavimento Flutuante “Quick-step” laminado, da Série  “Impressive” nos quartos e cozinhas.
  • Pavimento mosaico cerâmico nas casas de banho da Marca Love.
  • Rodapés em contraplacado marítimo folheado e lacado branco.

 

Cozinhas

  • Cozinhas revestidas a estuque, pintadas , móveis lacados branco e madeira de carvalho rústico  – MOB.
  • Bancads e forras em Dekton.
  • Teto falso em Pladur com leds.
  • Todas as cozinhas estão equipadas com eletrodomésticos da Marca Miele compostas por:
    • Exaustor.
    • Máquina de lavar  roupa.
    • Máquina de Secar roupa.
    • Máquina de Lavar e Secar roupa.
    • Máquina de lavar louça.
    • Forno pirolítico.
    • Forno microondas.
    • Placa de indução.
    • Arca Vertical de encastre.
    • Frigorífico Vertical de encastre.
    • Combinados de Encastre.

 

Quartos

  • Roupeiros lacado branco da marca “Sildoor”.
  • Ar Condicionado da marca “MITSUBISHI” e/ou DAIKIN com sistema multi-split.

 

Casas de banho

  • As casas de banho com revestimento cerâmico – LOVETILES , tetos falsos em Pladur e luzes leds embutidas.
  • As loiças sanitárias são da marca Scarabeo  com tampos de sanita de queda amortecida em cor Branco Mate.
  • Torneiras da marca Grõhe.
  • Móveis Codis Lacado branco, cinza e carvalho com leds embutidos nas gavetas.
  • Resguardos de duche com tratamento anticalcário da marca “Profiltek”.
  • Toalheiros eléctricos OLI

 

Em todos os imóveis

  • Ar condicionado da marca DAIKIN e/ou MITSUBISHI
  • Painéis solares com bomba de calor de 300L capacidade HIGREEN.

 

Garagens

  • Garagens individuais com carregamento elétrico.
  • Parqueamentos Duplos.

Certificação energética

Os apartamentos Portas do Montijo têm um excelente desempenho energético.
As emissões de CO2 são apenas de 0,49 toneladas/ano e temos um sistema de aguas quentes 86% mais eficiente que a referência de mercado.

contacte-nos
para mais informações






    Matos Louro e Luis, Lda, pretende continuar a prestar-lhe um serviço personalizado e, ao mesmo tempo, compromete-se a garantir a total privacidade dos seus dados, pelo que asseguramos que os mesmos, não são, em circunstância alguma, partilhados com terceiros, e apenas serão utilizados para responder ao seu pedido de contacto/informações.
    ⠀⠀⠀⠀⠀⠀⠀⠀⠀

    ⠀⠀⠀⠀⠀
    * obrigatório